Objektart
Adresse
Objektdaten
Informationen
Ausstattung
Details
Diese sehr geräumige Wohnung befindet sich in einem 3-Familienhaus mit einer Gewerbeeinheit in einer ruhigen Nebenstraße der Singener Südstadt. Sämtliche Geschäfte des täglichen Bedarfs sind fussläufig erreichbar und auch das Singener Zentrum ist nur 5 Minuten per Bus, Auto oder Fahrrad entfernt.
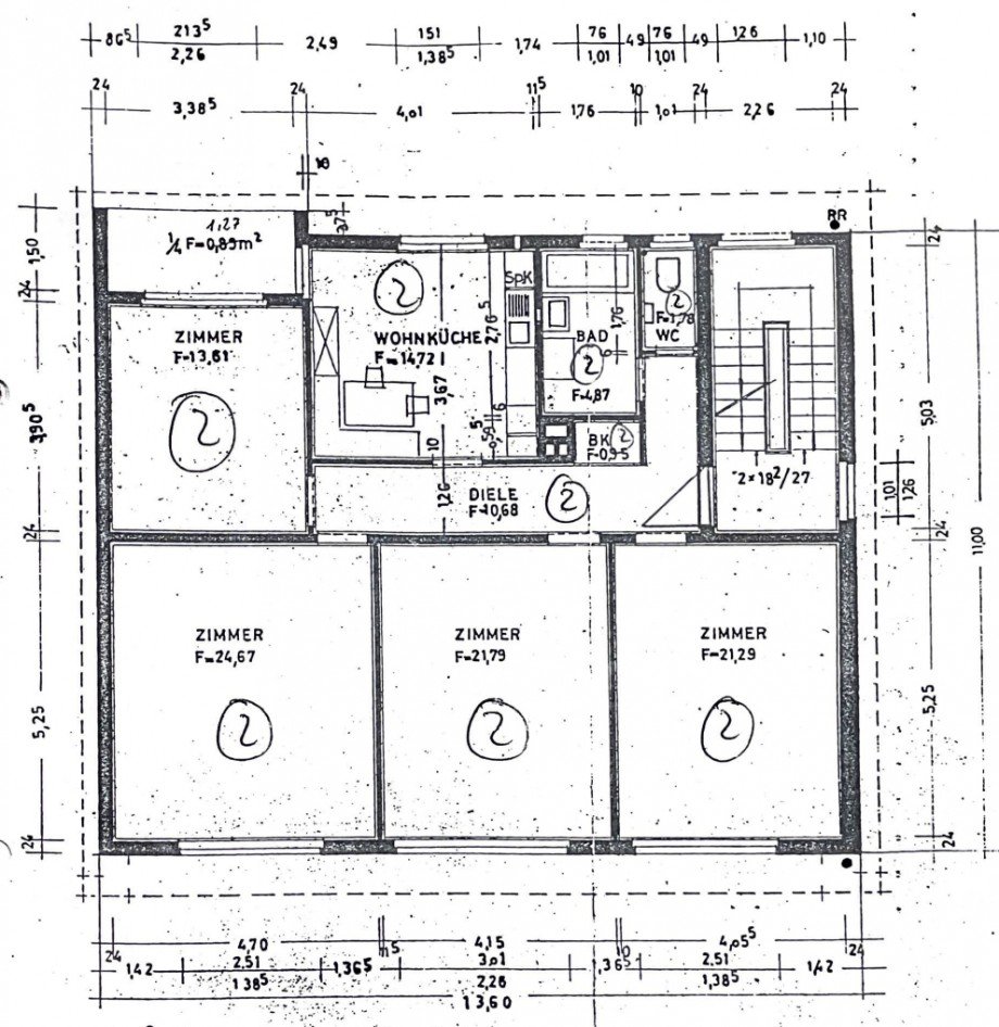
Die schöne Wohnung mit 111 m² Wohnfläche ist im 1. OG und verfügt über 3 große Schlafzimmer, 1 großes Wohn-/Esszimmer, 1 Ess-/Küche mit angrenzendem Südbalkon, 1 Bad mit Badewanne, Dusche und elektr. Fussbodenheizung, 1 separates WC, 1 Flur, 1 großen Kellerraum und 1 Garage.
Folgende Modernisierungen wurden duchgeführt:
- 2001 Kernsanierung der Wohnung inkl. Wasser- und Elektroleitungen
- 2001 Fenster und Rolladenaustausch
- 2001 Boden-, Wand- und Deckensanierung
- 2001 Sanierung der Bäder
- 2008 Neue Einbauküche
- 2021 Erneuerung der Heizung
Die Wohnung ist ab 01.07.2026 frei.
Ansprechpartner
Mobil: 004915735228340
dirk.solbach@remax.de
Energieausweis (Verbrauchsausweis)
176 kWh / (m²*a) Energieverbrauchskennwert
176 kWh / (m²*a) Energieverbrauchskennwert
176 kWh / (m²*a) Energieverbrauchskennwert
Weitere Informationen
| Wesentlicher Energieträger | Öl |
| Energieausweis gültig bis | 2031-02-13 |
| Energieausweis Jahrgang | ab dem 1.5.2014 |
| Energieausweis Werteklasse | F |
| Energieausweis Baujahr | 2021 |
| Energieausweis Gebäudeart | Wohngebäude |
| Heizung | Zentralheizung |
| Befeuerung | Öl |
Ich bin damit einverstanden, dass mir Karten von Google angezeigt werden. Es gelten die Datenschutzbedingungen von Google (https://policies.google.com/privacy).
Ich bin einverstanden